使えなくなったエレベーター空間を有効活用した部屋
お客様のご要望
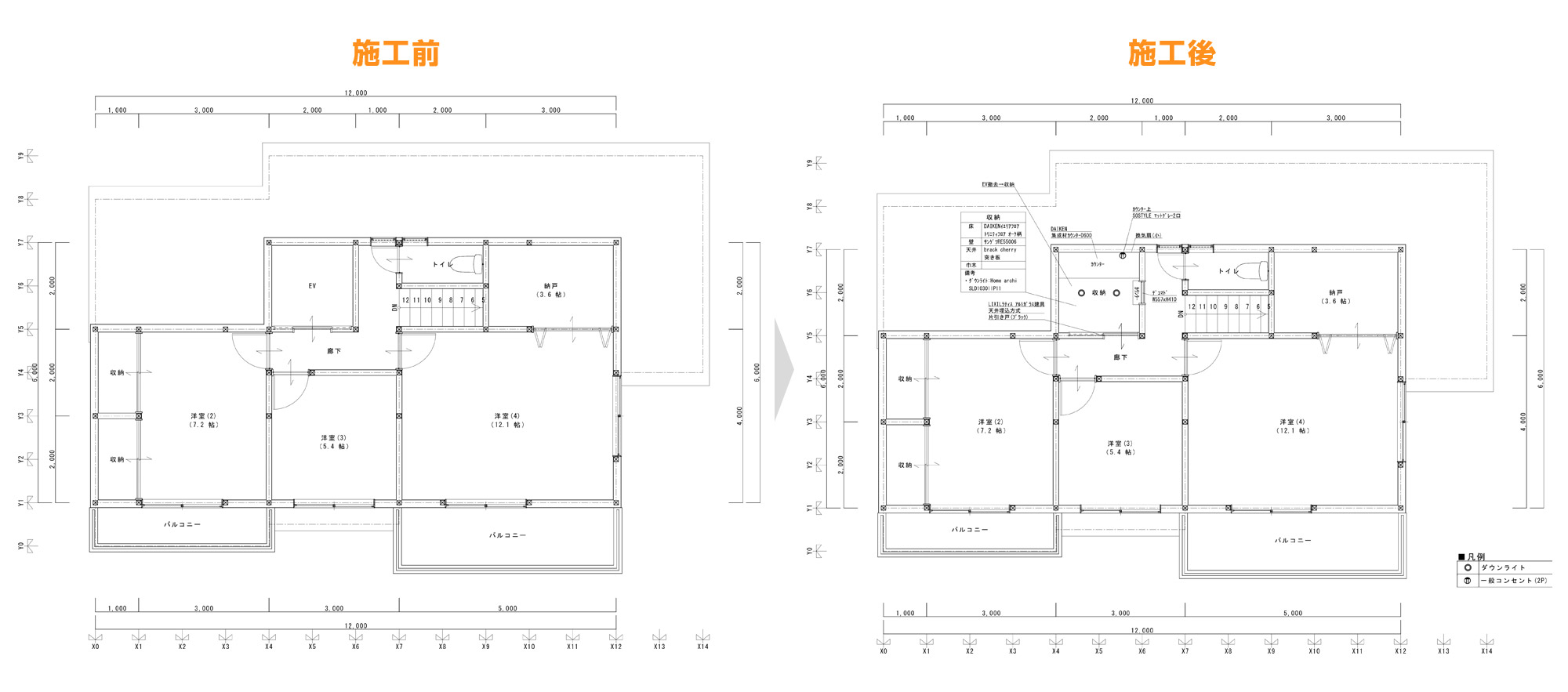
中古物件を購入したが、エレベーターが故障しており使用できないので、その空間を有効活用したい。
リフォーム詳細
リフォームデータ
| リフォーム内容 | 増改築リフォーム、内装リフォーム | ||
|---|---|---|---|
| 費用 | 3,100,000円(税込) | 工期 | 2週間 |
| 現場名 | 高崎市 M様邸 | 担当 | 高崎ショールーム |
| 商品仕様 |
フローリング:朝日ウッドテック ライブナチュラルプレミアム モーメント グリ(品番:PMT2M0305BYS) クロス:サンゲツ FINE(品番:FE76579、FE76191) クロス:サンゲツ TEXTURE& MATERIAL-ESELECT(品番:SGM1397) クロス:サンゲツ リザーブ(品番:RE55006) 特殊加工化粧シート:DAIKEN トリニティ(色:ウォールナット柄/グレー色、品番:YN7701-71) 建具:LIXIL ラフィス 換気扇:Panasonic 壁掛け熱交換気扇(色:グレー、品番:FY-20KW-H) ダウンライト:Panasonic 100刑 2個 LED(色:ホワイト、品番:LGD1100LQ1) 【金物・造作材】 森田アルミ工業:アルミ床見切り Keid (色:シルバー、品番:KED18-SL) 朝日ウッドテック:インターフィット 巾木(色:ホワイト、品番:IFH-22W1T) DAIKEN:インテリアハンガー U型900幅(色:ブラック、品番:FQ0418-501) DAIKEN:インテリアハンガー L型1700幅(色:ブラック、品番:FQ0419-601) DAIKEN:カウンタートップ スチール丸脚(色:ブラック、品番:ME2194-162) DAIKEN:カウンタートップ カウンター用L型ブラケット 特大(色:Tシルバー、品番:ME6153) DAIKEN:レギュラーカウンター 集成材 ゴム材 幅600mm(色:トープグレー、品番:ME6130-32MG) DAIKEN:化粧枠 イエリア 無目枠固定式(色:トープグレー、品番:MT7269-13MG、MT7282-13MG) |
||
リフォームのポイント
1階の開口部を1か所増設し、動線を確保したウォークスルー設計としました。
イメージパース

図面


施工前

施工中の様子





施工後







お客様の声
今回は難しい工事にもかかわらず、ありがとうございました。
前例がない中、協力会社の皆様と連携して進めていただき感激しました。
仕上がりにも大変満足しています。
担当スタッフより一言

この度は工事をご依頼いただき、誠にありがとうございました。
前例の少ない内容で難易度の高い工事でしたが、事前のお打ち合わせを重ね、日程調整などにもご協力いただいたおかげで、スムーズに進めることができました。
新しく生まれ変わった空間で、これからの生活がより快適になることを心より願っております。
















